Atlas Survival Shelters
10' x 30' Platinum Series Luxury Bunker | Atlas
10' x 30' Platinum Series Luxury Bunker | Atlas
- Contact Us to Purchase
- Call for Shipping Info
The Platinum Series Bunker is a proprietary line of modular bunkers from Atlas Survival Shelters that are specifically engineered to be buried. To achieve industry-leading quality, our bunkers are:
- pressure-tested to ensure a gas- and water-tight seal to combat leaks from groundwater
- coated with a cold-tar substance that is used to coat cargo ships, further waterproofing the material
- engineered to be structurally sound under the massive weight of earth that covers them
- fitted with luxury interiors that are worthy of a new-build home for maximum comfort
Specifications
| Interior Width | 10 feet |
| Interior Length | 30 feet |
| Interior Ceiling Height | 8 feet |
|
Underfloor storage *throughout living area only |
2 feet |
| Stairway Width | 3 feet |
What comes with it?
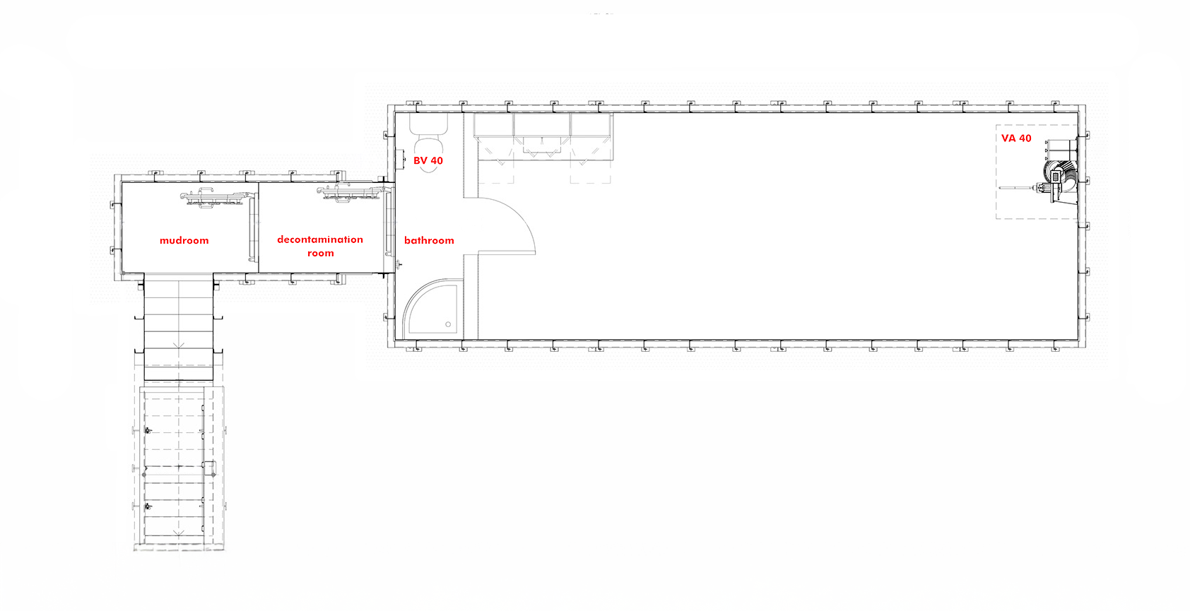
- 1 Bedroom sized 10 ft x 9 ft
- Private toilet & shower
- Kitchenette with premium cabinets and engineered stone countertops
- 36" Stairway with gas-tight door at the bottom
- AR500 Bulletproof Hatch at the top of the stairs
- 4' x 8' Mudroom with gas-tight door
- 300 gallon water tank that is stored in the underfloor area
- Swiss-made VA-150 Air Filtration System
- 6" galvanized steel air pipes for vent and intake, with solid brass check valves
- Overpressure Blast-Valve made in Switzerland
- Extremely durable Trex Composite Flooring
- LED lights for minimal power usage
- Plenty of GFI electrical outlets
- Epoxy-painted interior walls
- Exterior coated with a 150-year rubberized cold tar
- 3000 PSI steel fittings for plumbing
- 1/4" thick steel walls with 8" structural steel channel
Customizations
- Choose between Sea Salt Grey, Coconut Husk, and Dark Cocoa composite flooring
- Substitute a Fort Knox Vault Door for one of the Gas-Tight Doors
- Add an Escape Tunnel (included with bunkers 40' long or larger)
Feel free to ask! We can accommodate a wide range of customization options.
* prices do not include freight & installation
- batteries and generator are not included
* price does not include escape tunnel
Share
The Safe Cellar Bunker Series
The Safe Cellar – Strong, Safe & Ready When You Need It
Looking for the ultimate underground bunker or survival shelter?
The Safe Cellar is a heavy-duty, underground steel bunker from Atlas Survival Shelters, made to keep you and your family safe during any emergency.
Each Safe Cellar is built to be buried underground and made from ¼-inch thick steel. It’s super strong—reinforced with 8-inch I-beams, welded inside and out, and pressure-tested to be 100% gas-tight and waterproof. That means no leaks from groundwater or outside air.
To protect the steel, we coat every shelter with a cold-tar finish—the same stuff used on big cargo ships. It keeps the shelter safe from rust, decay, and water damage for years.
Every Safe Cellar Comes With:
- A Swiss NBC Air Filtration System (sized to fit your unit)
- A bulletproof hatch made of ⅜" AR500 steel
- A 36-inch wide staircase for easy access
- A 90-degree turn into the mudroom to block harmful gamma rays
- 8-foot ceilings throughout the bunker
- 2 feet of hidden storage under the entire floor
- A 110-gallon water tank stored safely under the floor
- Gas-tight marine doors with 6-point locking system for max security
- A 4 ft x 8 ft mudroom between the stairs and main living area
- Built strong enough to be installed under a house, driveway, or yard
Built to Survive Anything
Whether you're preparing for storms, disasters, or future threats, the Safe Cellar gives you long-term protection, comfort, and peace of mind. It’s a modular steel shelter that’s tough enough to handle the weight of the earth above, while staying dry and secure inside.
Perfect for:
- Emergency shelters
- Doomsday bunkers
- Fallout shelters
- Underground storm protection
- Secure family safe rooms
| Living Space Dimensions (ft) | Width (ft) | Length (ft) | Interior Space (sq ft) | Air Filtration System | Bathroom | Escape Tunnel |
| 7' x 10' | 7 | 10 | 70 | VA-40 | × | × |
| 8' x 12' | 8 | 12 | 96 | VA-40 | × | × |
| 8' x 16' | 8 | 16 | 128 | VA-40 | × | × |
| 8' x 20' | 8 | 20 | 160 | VA-40 | × | × |
| 10' x 20' | 10 | 20 | 200 | VA-40 | Toilet & Shower | × |
| 10' x 25' | 10 | 25 | 250 | VA-40 | Toilet & Shower | × |
| 10' x 30' | 10 | 30 | 300 | VA-40 | Toilet & Shower | × |
| 10' x 40' | 10 | 40 | 400 | VA-150 | Toilet & Shower | Included |
| 10' x 50' | 10 | 50 | 500 | VA-150 | Toilet & Shower | Included |
| 12' x 50' | 12 | 50 | 600 | VA-150 | Toilet & Shower | Included |
Get the best in underground survival shelters—trust the strength of the Safe Cellar.
Send us a message here, or just give us a call at +1(323)353-3506.
America's #1 Most Trusted Bunker Brand